New
3m x 3m Control Room

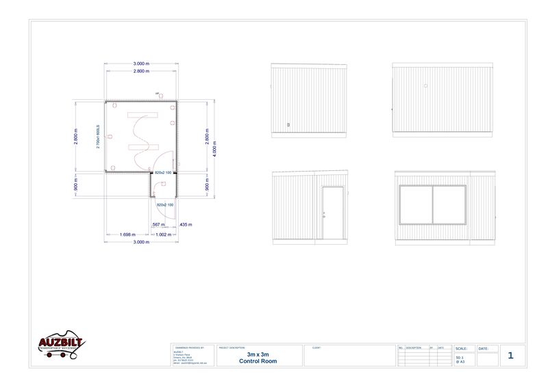
3m x 3m Control Room

2 of RW37 Acoustic Rated doors with seals, Door closers and Lock sets
1 of 1600mm x 2700mm Window with Laminated Glass
2 of 1200 long LED lights
1 of Light switch
5 of 2G GPO
1 of 1G GPO for A/C
1 of TECO Reverse Cycle 2.20kW 1.5 Star MEPS R32
1 of Electrical Panel & POE Box
Polyflor Commercial 2mm Vinyl
Unit constructed using Bondor 50mm EPS FR panel
Roof Pitch 100mm/3m (33.3mm/1m)

Call for Price