New
174m x 5m 6 Mod Complex

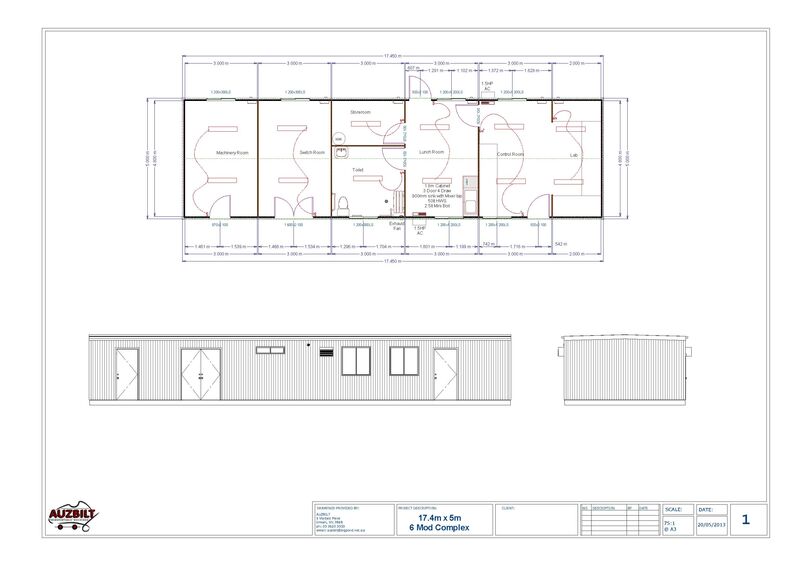
17.4m x 5m 6 Mod Complex

Machinery Room:
1 of 2100 x 870 external door (EPS Panel Door)
1 of Passage set door handle with staple & hasp
1 of W1175 x H1130 Commercial Alum. sliding window & Flyscreens
1 of Amplemesh Security Grills
2 of 1200 long LED lights
4 of 2G GPO

Switch Room:
1 of 2100 x 1600 Double Door (EPS Panel Door)
1 of Passage set door handle with staple & hasp
1 of W1175 x H1130 Commercial Alum. sliding window & Flyscreens
1 of Amplemesh Security Grills
2 of 1200 long LED lights
4 of 2G GPO

Store Room:
1 of 2100 x 870 internal door (EPS Panel Door)
1 of 1200 long LED lights
2 of 2G GPO

Disabled Toilet/Shower
1 of 2100 x 920 int door
1 of W1175 x H300 Commercial Alum. sliding window/ Obscure
1 of Amplemesh Security Grills
1 of compliant door furniture/braille signage.
1 of DDA Compliant disabled toilet
1 of DDA Compliant back rest and rails.
1 of DDA Compliant hand basin and flick mixer.
1 of DDA Compliant mirror
1 of DDA Compliant shelf
1 of DDA Compliant soap and paper towel holders
1 of DDA Compliant shower assembly / and shower seat.
1 of 1200 long LED lights
1 of 50L HWS

Lunchroom:
1 of 2100 x 920 external door (EPS Panel Door)
1 of 2100 x 920 Internal door (EPS Panel Door)
1 of W1175 x H1130 Commercial Alum. sliding window & Flyscreens
1 of Amplemesh Security Grills
1 of 1.8m Cabinet 3 Door 4 Draw
1 of S/S sink
1 of Flick mixer tap
1 of Zip Econoboil Instant Boiling Water Unit
1 of 25L HWS
1 of TECO Reverse Cycle 2.20kW 1.5 Star


Control Room & Lab:
1 of 2100 x 920 external door (EPS Panel Door)
2 of W1175 x H1130 Commercial Alum. sliding window & Flyscreens
2 of Amplemesh Security Grills
1 of TECO Reverse Cycle 2.20kW 1.5 Star
2 of Benching in the Control room and lab
8 of 2G GPO

2mm Commercial vinyl flooring
Unit constructed using Bondor 50mm EPS FR panel

Call for Price